Gemeindesaal Kirchenzentrum

Flawil

Bilder

Pläne

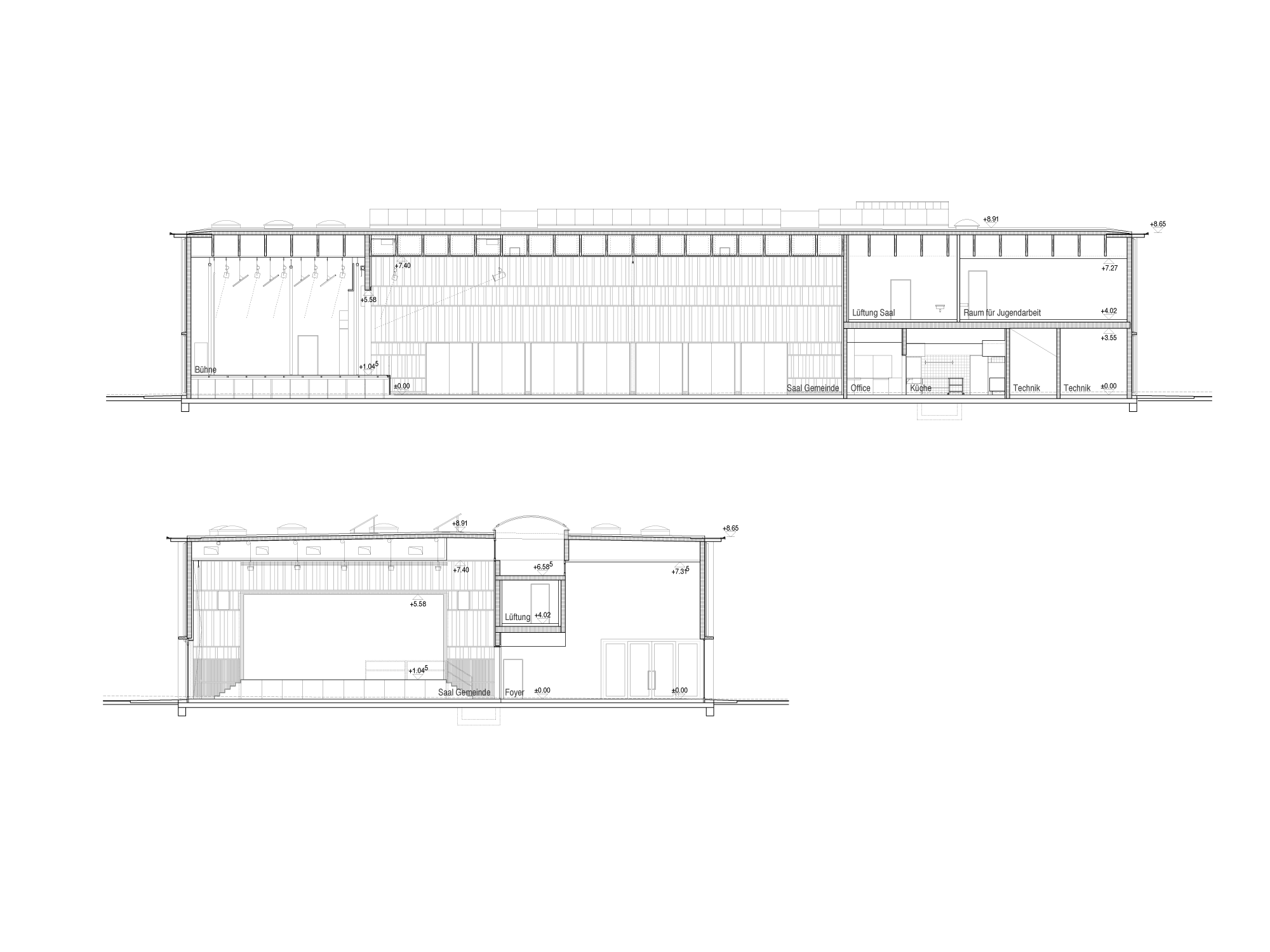
Durch die Setzung des neuen Holzbaus in das südliche Baufeld, nimmt der Neubau respektvoll Kontakt mit der Kirche und ihrer raumschaffenden Aussenanlage auf, ohne dass sich die zwei Gebäude gegenseitig konkurrenzieren. Während die massive Kirche als Wahrzeichen innerhalb des Ortsbildes Monumentalität markiert, strahlt der Gemeindebau durch seinen pavillonartigen Charakter Leichtigkeit aus. Die innere Organisation spiegelt die einfache Struktur des Gebäudes wieder: zwei doppelgeschossige Foyers markieren die beiden Eingänge und sind durch einen eingeschossigen Bereich miteinander verbunden. Die beiden Bereiche können einerseits funktional abgetrennt werden, andererseits ergibt sich eine synergetische Verflechtung der Nutzungen. Der Haupteingang richtet sich zum Dorf aus, der Kirchgemeindezentrumseingang steht in direkter Verbindung zur Kirche und der Eingang zum Jugendraum liegt abseits an der Ostseite des Gebäudes.
Die Lage am Siedlungsrande, am Übergang zur bewirtschafteten Landschaft ist für die Aussenraumgestaltung ausschlaggebend. Das charakteristische Bild von dispers verteilten Obstbäumen und ausgedehnten Wiesenflächen bleibt weiterhin bestimmend. Blumenwiesen im Bereich des Neubaus, Rasenflächen zwischen Schule und Kirche und Schotterrasen für den Parkplatz bilden zusammen mit einem aufgelösten Raster von Zierobstbäumen das freiräumliche Grundgerüst. Befahrbare Zugangswege und ein befestigter Vorplatz erschliessen das Zentrum .

Daten

Arge: BMBK Blatter+Müller / Bischoff Kopp
Bauherrschaft: Gemeinde Flawil/ Evangelische Kirchgemeinde Flawil
Bauaufgabe: Neubau Gemeindesaal/ Kirchenzentrum
Gesamtbaukosten: 10 Mio. Fr.
Bauvolumen: 12'975 m³
Realisierung: 2006/08
Mitarbeiter: Silke Kietzer, Florian Kaiser, Ulla Rubas, Lilian Demuth
Bauingenieur: SJB Kempter- Fitze AG, Christoph Meier
Architekturfotografie: Hannes Henz

Projektinformationen

Als PDF herunterladen

Architekturbüro Blatter + Müller

http://www.blattermueller.ch

www.blattermueller.ch werk,bauen+wohnen / 1010 / Nr.3

http://www.werkbauenundwohnen.ch/de/node/584

Hochparterre / Holzbaupreis Schweiz 2009 / Nr.6-7 /Beilage

www.hochparterre.ch

zurück zur Übersicht